
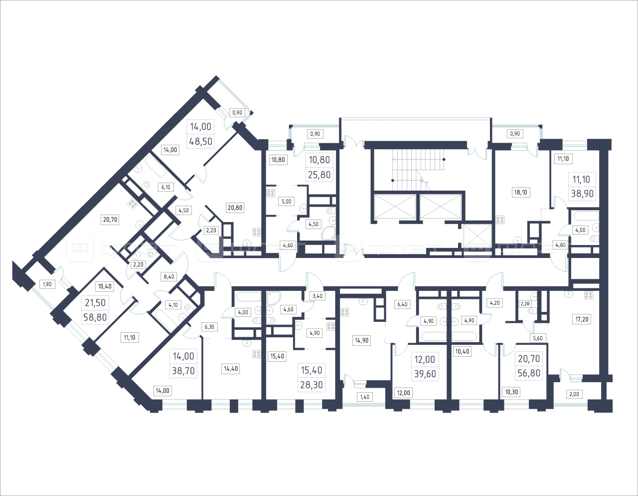
1-комнатная квартира, №249
Респ Татарстан, г Казань, ул Родины, 27 (дом 1), Советский
- 48.5/14/20.8 м²
- 12/23 этаж
- Квартира
- Главные роли
- КамаСтройИнвест
- Бизнес
- 2 кв. 2028г.
- Монолит-кирпич
- 2.72 м
- 8
- 1
- 6.1 м²
- 0.9 м²
11 979 500 ₽

Респ Татарстан, г Казань, ул Родины, 27 (дом 1), Советский